Fußgängerzone auf der Ehrenstraße - Aktueller Stand und Ausblick
Stadt Köln
Mitte 2021 haben wir Sie eingeladen, am Planungsprozess zur Umgestaltung der Ehrenstraße teilzunehmen. Seitdem ist bereits viel passiert. Neben einem Online-Dialog gab es eine Online-Befragung der Anwohner*innen und Unternehmer*innen. Im April 2022 wurden die Ehrenstraße und die Breite Straße zwischen Willy-Millowitsch-Platz und Richmodstraße zur Fußgängerzone.

Stadt Köln
Und wie ging es danach weiter?
Die Bezirksvertretung Innenstadt hat am 25. August 2022 einen erweiterten Planungsbeschluss zur Umsetzung der Ehrenstraße gefasst.
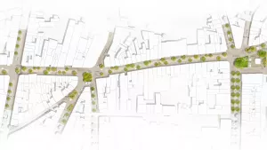
Die Variante, die aus Sicht der Verwaltung die meisten Vorteile mitbringt (Vorzugsvariante) sieht vor, den Willy-Millowitsch-Platz als einheitliche Platzfläche mit einem durchgängigen Pflaster auszubilden.

scape Landschaftsarchitekten
Das Zentrum des Platzes erhält eine besondere Qualität: Dieser Ort soll als sogenannter „Pocket Park“ mit Trinkbrunnen und Spielgelegenheiten neu gestaltet werden.
Der Pavillon wird dafür in eine wassergebundene Decke eingebunden, an den Seiten werden großzügige Grünflächen ausgebildet.
Ausgehend vom Willy-Millowitsch-Platz soll die Ehrenstraße einen einheitlichen Pflasterbelag erhalten. Dieser erstreckt sich von Hauskante zu Hauskante und schafft einen zusammenhängenden Straßenraum. In der Mitte der Straße wird ein vier Meter breiter „Teppich“ zoniert. Hier können eilige Fußgänger*innen unterwegs sein und Fahrräder fahren.
Der Streifen vor den Geschäften lädt dagegen auf beiden Straßenseiten zum Flanieren ein. Hier soll zudem Platz für Bänke, Fahrradständer, Auslagen und Gastronomie angeboten werden.

scape Landschaftsarchitekten
Der neue Boulevard wird beidseitig von Bäumen gesäumt. Diese stehen nicht, wie oftmals bei Straßen üblich, in Reih und Glied, sondern sind locker über den Straßenraum verteilt. Die Bestandsbäume bleiben erhalten und werden in die neuen Baumstellungen integriert.
An der Kreuzung Pfeilstraße / Alte Wallgasse soll gemäß der Vorzugsvariante ein weiterer Platz entstehen. Analog zum Willy-Millowitsch-Platz ist auch hier eine grüne Platzmitte geplant: Eine Bauminsel bildet zukünftig das Zentrum des Stadtraumes. Die grüne Insel wird als Hochbeet ausgebildet und an den Rändern mit langen Sitzauflagen ausgestattet. Ein Fontänenfeld soll den Platz zusätzlich beleben.
Im weiteren Verlauf in Richtung Friesenwall wird die Ehrenstraße als grüner Boulevard fortgesetzt, um an der Kreuzung Friesenstraße wiederum in einen kleinen Platz zu münden. Auch hier wird die Mitte des Platzes mit einer kleinen grünen Insel markiert. Über den Platz läuft die Fahrradstraße Friesenwall, die in die neue Gestaltung integriert wird.
Auch der letzte Abschnitt der Ehrenstraße zwischen Friesenwall und Hohenzollernring erhält einen Boulevardcharakter. Hier weitet sich der Straßenraum deutlich auf und es entsteht ein großzügiger Raum, der genügend Platz für Gastronomie bietet und zum Ring eine attraktive Adresse für die Ehrenstraße ausbildet.

scape Landschaftsarchitekten
Auf dieser Grundlage bauen die konkretisierenden Planungsschritte bis zur Umsetzung auf. Der weitere Planungs- und Umsetzungsprozess wird von geeigneten Beteiligungsformaten begleitet.
Mit dem Baubeginn für die Umgestaltung ist 2024 zu rechnen.

VCD-Pressestelle
Die Stadt Köln wurde am Donnerstag, 24. November 2022 in Berlin im Rahmen der Verleihung des Deutschen Verkehrsplanungspreis für das Planungsverfahren zur Umgestaltung der Ehrenstraße mit einer Anerkennung ausgezeichnet. Von der Jury hervorgehoben wurde der breite Beteiligungsprozess, die Ausweisung als Fußgängerzone und das Grünkonzept als Beitrag zur Klimafolgenforschung.
Schauen Sie sich hier den erweiterten Planungsbeschluss an. Hier finden Sie auch einen Plan der zukünftigen Gestaltung:
Erweiterter Planungsbeschluss
Im Projektarchiv finden Sie unter anderem die Ergebnisse des Online-Dialogs, der vom 10. Mai bis 6. Juni 2021 stattgefunden hat:
Projektarchiv Verkehrliche Umgestaltung der Ehrenstraße



























